
B.Ş.R. BUTCHER DESIGN || KASAP TASARIMI
Kasap Tasarımı: Fonksiyonellik ve Hijyenin Estetikle Buluşması İle İlgili Makaleye Göz Atın !
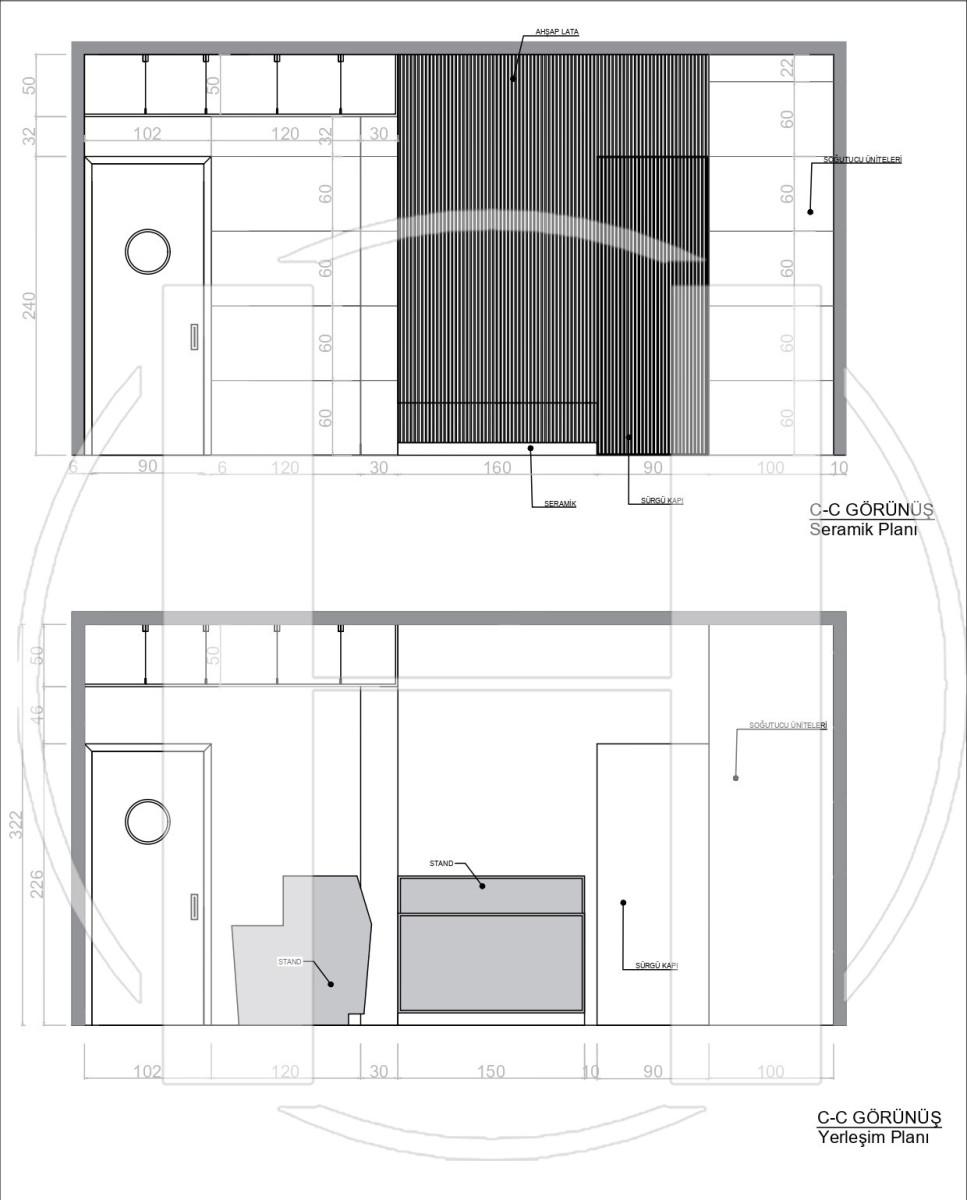
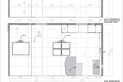
Kasap dükkanları, et ürünlerinin hijyenik ve çekici bir şekilde sunulması gereken yerlerdir. Doğru tasarlanmış bir kasap dükkanı, müşteri memnuniyetini artırırken işlevselliği ve hijyeni de en üst düzeye çıkarır. Bu makalede, kasap dükkanı tasarımının inceliklerini ve dikkat edilmesi gereken noktaları ele alacağız.
Devamı…
